Обяви За нас Контакти
Продава 2-СТАЕН
град Варна, Владислав Варненчик 2
95 000 €
185 803.85 лв.

(1 284 €, 2 511.29 лв./m2)
Не се начислява ДДС
История на цената
Коригирана в 13:42 на 9 февруари, 2026 год.
Обявата е посетена 1069 пъти.
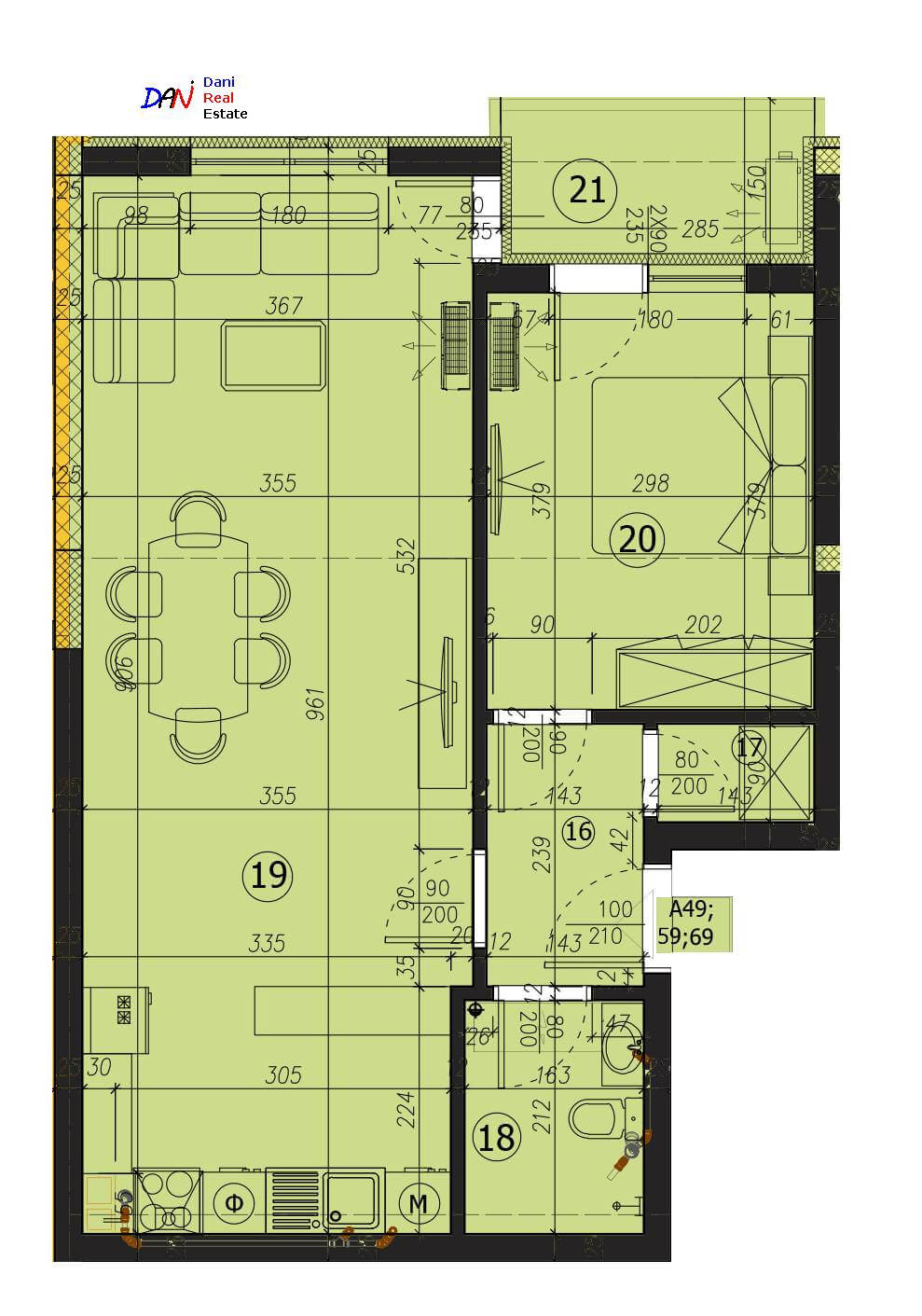
Площ:
74 m2
Етаж:
4-ти от 7
Газ:
НЕ
ТEЦ:
НЕ
Строителство:
Тухла, Ще бъде въведен в експлоатация 2026 г.

Описание на имота:


🏡 Просторен двустаен апартамент във Владислав Варненчик пред Акт 15!

📍 Локация: гр. Варна, кв. Владислав Варненчик спокоен и удобен за живеене район
🏢 Етаж: 4 от 7
📐 Площ: 74 кв.м
🧱 Тип строителство: Нова тухлена сграда
🌞 Изложение: Изток светъл и топъл сутрин

🛋️ Функционално разпределение:
✅ Просторна дневна с кухненски бокс
✅ Спалня
✅ Килер / складово помещение
✅ Баня с тоалетна
✅ Коридор
✅ Балкон с достъп от дневната

🏗️ Състояние:

Пред Акт 15

Завършен по БДС готов за довършване по ваш стил и предпочитания

🎯 Предимства:
🌿 Район с добра инфраструктура и зелени площи
🏪 В близост до магазини, училища и градски транспорт
📦 Функционален килер допълнително място за съхранение
🚶‍♂️ Подходящ за живеене или инвестиция

💶 Цена: 95 000 EUR

📞 За повече информация и оглед:
📲 Дияна Георгиева 0887 632 993
Особености
Тухла
Асансьор
Интернет връзка
Видео наблюдение
Контрол на достъпа
Саниран
Възможност за дан. кредит
За контакт:
0887632993
Брокер:
Дияна Георгиева
0887632993
Още оферти от брокера: Продава | Дава под наем | Купува | Наема
Агенция:
ДАНИ НЕДВИЖИМИ ИМОТИ
0879605044
ДАНИ НЕДВИЖИМИ ИМОТИ logo
Медал за прослужено време
В imot.bg от 2021 г.
danioreshkova.imot.bg
Адрес:
област Варна, гр. Варна, ул.'Селиолу ' 32
ИЗПРАТИ ЗАПИТВАНЕ
ИЗПРАТИ ЗАПИТВАНЕТО

Продава 2-СТАЕН
град Варна, Владислав Варненчик 2
Обява: 1b174863262168636

95 000 €
185 803.85 лв.
История на цената
(1 284 €, 2 511.29 лв./m2)

Не се начислява ДДС
ЗАПАЗИ ОБЯВАТА

Местоположение: град Варна, Владислав Варненчик 2

Допълнителни данни за имотите в района и сравнение с други райони

Покажи

Период

и 2 месеца

* Средните цени са определени чрез медианна стойност